
Creating Healthier Indoor Air Quality
Aerofresh 300
Heat Recovery Ventilation Units
The Aerofresh 300 heat recovery ventilation unit is designed to create a healthier, more comfortable indoor environment in small to large homes. This efficient and high-performance ventilation system provides continuous fresh, filtered air with stable humidity control.
A High-Efficiency Heat Recovery System
Engineered to minimise power consumption and deliver quiet operation, the Aerofresh 300 heat recovery unit includes a market-leading, high-efficiency counter-flow heat exchanger that provides up to 90% energy recovery.
Increases comfort while minimising energy usage
Equipped with intelligent humidity and temperature sensors, the Aerofresh unit automatically adjusts to changing conditions to ensure reliable, low-maintenance operation. The Aerofresh 300 captures the heat energy normally lost through exhaust air, and transfers it to the incoming fresh air stream, maximising comfort and energy savings.
Creates healthier indoor air quality
Aerofresh 300 is fitted with high quality G4 and F7 filters as standard to decrease pollutant levels and provide healthier indoor air quality. This Passivhaus certified unit also features automatic summer bypass and a convenient filter replacement indicator. This energy saving air distribution system ensures each room is well ventilated, which helps reduce the demand for additional heating and cooling.
On-board LCD display / wireless app control for use on smart devices
Aerofresh 300 controllers
The Aerofresh 300 heat recovery ventilation unit can be operated via an on-board LCD display, or an intuitive smart phone App. Both control systems can change air flow, schedule operational periods and adjust a range of other functions.
- 4 adjustable air flow levels
- 7 day scheduler enables set-up of operational periods
- Filter replacement and servicing alerts
- Bypass mode (automatic)
- Frost protection mode
- App available on IOS and Android
Works with two duct systems
Semi Rigid Un-insulated duct
A semi rigid un-insulated duct system uses individual ducts connected directly from the HRV unit to each room. A ceiling service cavity of 140mm depth between the ceiling insulation and plaster board is required to distribute ductwork throughout the building. Although this system has a slightly higher cost, it is more airtight and eliminates duct heat gain / loss.
Branched insulated flexible duct
branched insulated flexible duct system uses components such as y pieces, balancing dampers, insulated duct and grilles. This type of installation requires minimal prior experience with HRV installations, as the system is similar to a ducted air conditioning system. The ducting is installed in the ceiling space without the need for a dedicated service cavity.
How the Aerofresh 300 works
The unit recovers thermal energy from the inside air being exhausted to outside. The exhausted air then preheats or precools the incoming fresh air to create a more comfortable living space. The innovative Aerofresh 300 unit reduces moisture within the home to lower condensation and therefore minimise the risk of mould growth.
Features
- High thermal efficiency – up to 90%
- Smart control via app and wireless-enabled sensors
- Advanced filtration – G4 & F7
- Fully automatic summer bypass
- Active frost protection to -20°C
- Integral humidity and temperature sensors
- Filter Replacement indicator
- Constant volume flow control
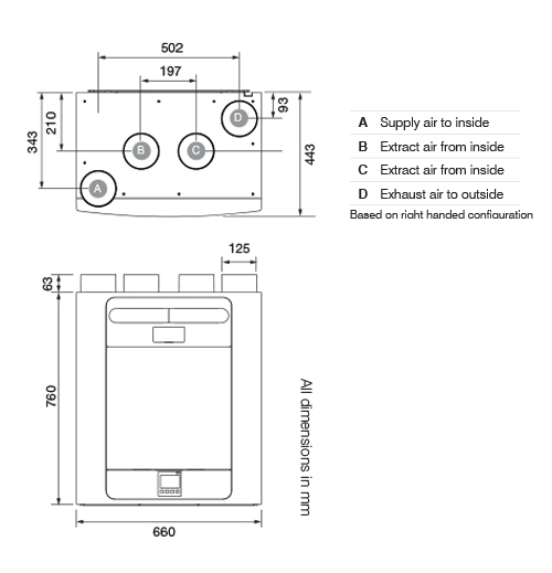
- Left/right handing can be set during commissioning
- Passivhaus certified performance
- Independently tested to BS EN 13141-7:2010 for acoustic performance
- Can be connected via a Modbus interface
Specifications
- Weight: 27kg
- Ducting: 4 x Ø125mm spigots
- Condensate connection: 32mm drain connection
- Construction:
- Internal body - EPS (Polystyrene)
- Unit housing - ABS
- Voltage: 220-240 V
- Fan motors: EC
- Filters: Extract - G4, Supply - G4 (F7 Optional)
Technical Data
| (dBA) @ 3m | ||||
|---|---|---|---|---|
| Operating Speed | 40% | 60% | 80% | 100% |
| Supply | 38.4 | 45.7 | 51.7 | 56.2 |
| Extract | 27.3 | 34.2 | 41.1 | 42.0 |
| Breakout | 26.0 | 34.0 | 40.5 | 43.0 |
* Sound Pressure level @ 3m in free field
Performance Curve
Dimensional Data
Aerofresh 300
Heat Recovery Ventilation Units- Home /
- Product List (HRV) /
- Aerofresh 300
About Us
Fantech, the industry leader for 53 years and continues to be the forefront of fan and acoustics technology by developing and implementing new and innovative products for virtually every air movement and ventilation need.